DOM PARTEROWY N-275


INFORMACJE
autor projektu: Marcin Macieszko
pracownia projektowa: Nanostudio
powierzchnia użytkowa budynku mieszkalnego: 169,24 m²
powierzchnia garażu i pom. technicznych: 28,45 m²
powierzchnia zabudowy budynku mieszkalnego: 239,49 m²
kubatura budynku mieszkalnego: 1378,22 m³
wysokość budynku mieszkalnego: 7,65 m
kąt nachylenia dachu budynku mieszkalnego: 40°
szacunkowy koszt budowy: 552 tys. (stan surowy zamknięty netto)


TECHNOLOGIA WYKONANIA
fundament: ławy fundamentowe
ściany zewnętrzne: murowane, dwuwarstwowe
ściany wewnętrzne: murowane
strop: konstrukcja drewniana
dach: dachówka ceramiczna

OPIS
Projektowany budynek jednorodzinny parterowy stanowi funkcjonalną i nowoczesną odpowiedź na potrzeby 4-osobowej rodziny. Układ wnętrza oparto na czytelnym podziale na strefę dzienną i prywatną. Strefę dzienną tworzy przestronny salon z jadalnią i otwartą kuchnią o łącznej powierzchni ponad 54 m², z bezpośrednim wyjściem na taras i do ogrodu. Uzupełnieniem tej części jest spiżarnia, WC dla gości oraz przedsionek z dostępem do pomieszczenia technicznego i garażu dwustanowiskowego.
Strefa nocna obejmuje sypialnię główną z garderobą i prywatną łazienką, dodatkowy pokój, gabinet oraz komunikację zapewniającą komfortowe oddzielenie części prywatnej od dziennej. Funkcjonalny układ pomieszczeń sprzyja wygodzie użytkowania oraz elastycznemu dostosowaniu domu do zmieniających się potrzeb mieszkańców.
Budynek zaprojektowano w nowoczesnej stylistyce, z prostą, harmonijną bryłą i dużymi przeszkleniami od strony ogrodu, które nadają całości lekkości i otwartości. Bryła przykryta jest dachem dwuspadowym o kącie nachylenia 40°, pokrytym płaską dachówką w kolorze grafitowym. Spójne rozwiązania materiałowe i architektoniczne podkreślają współczesny charakter budynku oraz jego elegancki wygląd.

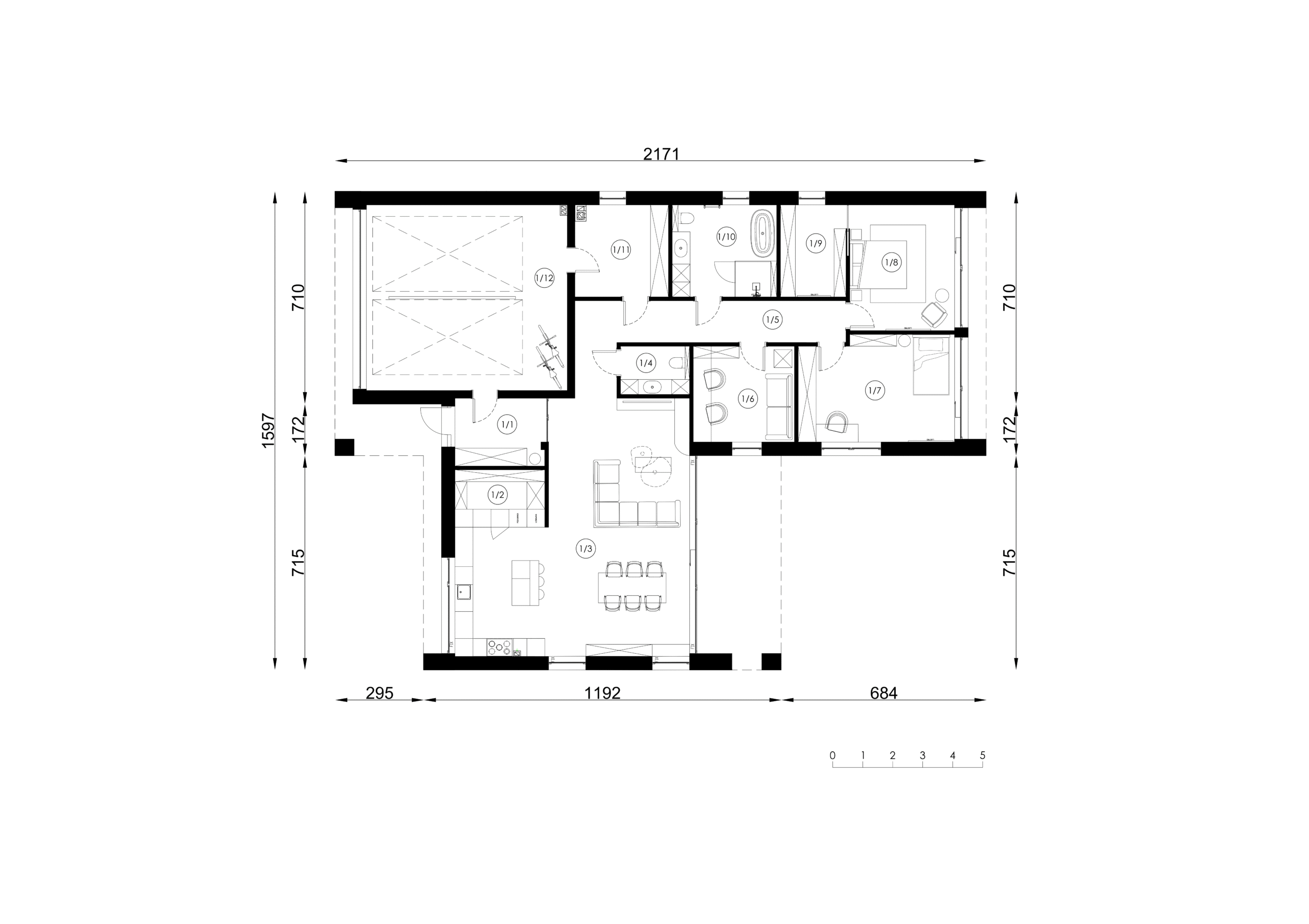
PARTER
1/1 Przedsionek – 7,08 m²
1/2 Spiżarnia – 5,40 m²
1/3 Kuchnia + Salon – 54,03 m²
1/4 WC – 3,71 m²
1/5 Komunikacja – 14,60 m²
1/6 Gabinet – 10,82 m²
1/7 Pokój – 18,10 m²
1/8 Sypialnia – 14,70 m²
1/9 Garderoba – 6,74 m²
1/10 Łazienka – 10,74 m²
1/11 Pomieszczenie Techniczne – 8,99 m²
1/12 Garaż – 42,78 m²
