DOM PIĘTROWY N-273


INFORMACJE
autor projektu: Marcin Macieszko
pracownia projektowa: Nanostudio
powierzchnia użytkowa budynku mieszkalnego: 236,97 m²
powierzchnia garażu: 49,08 m²
powierzchnia zabudowy budynku mieszkalnego: 251,90 m²
kubatura budynku mieszkalnego: 1327,68 m³
wysokość budynku mieszkalnego: 8,45 m
kąt nachylenia dachu budynku mieszkalnego: 37°
szacunkowy koszt budowy: 552 tys. (stan surowy zamknięty netto)


TECHNOLOGIA WYKONANIA
fundament: ławy fundamentowe
ściany zewnętrzne: murowane, dwuwarstwowe
ściany wewnętrzne: murowane
strop: konstrukcja drewniana
dach: dachówka ceramiczna

OPIS
Budynek jednorodzinny dwukondygnacyjny pod względem funkcjonalnym odpowiada potrzebom 3-4 osobowej rodziny. We wnętrzu widać wyraźny podział na część dzienną-parter, na którą składa się otwarta przestrzeń salonu z kuchnią oraz jadalnią, a także spiżarnia, biuro, garderoba, łazienka oraz siłownia. Część nocną- piętro stanowią sypialnia z garderobą i łazienką, 2 pokoje z garderobami oraz łazienką. W bryle budynku przewidziano garaż dwustanowiskowy.
Budynek projektowany jest w nowoczesnej stylistyce, elewacje pokryte są deskami w układzie pionowym oraz białym tynkiem, całość dopełniona jest grafitową, aluminiową solarką okienną. Bryła kryta jest dachem dwuspadowym o kącie nachylenia 37° pokryta dachówką ceramiczną płaską w kolorze ciemnoszarym. Rozwiązania materiałowe nawiązują do najnowszych trendów kształtowania architektury. Pomimo swoich gabarytów zyskuje lekkość dzięki dużym przeszkleniom.

PARTER
1/1 Komunikacja – 15,40 m²
1/2 Garderoba – 8,63 m²
1/3 Biuro – 13,59 m²
1/4 Kuchnia + jadalnia – 34,52 m²
1/5 Spiżarnia – 6,57 m²
1/6 Salon – 36,69 m²
1/7 Pokój – 13,83 m²
1/8 Łazienka – 4,42 m²
1/9 Siłownia – 23,78 m²
1/10 Garaż – 49,08 m²

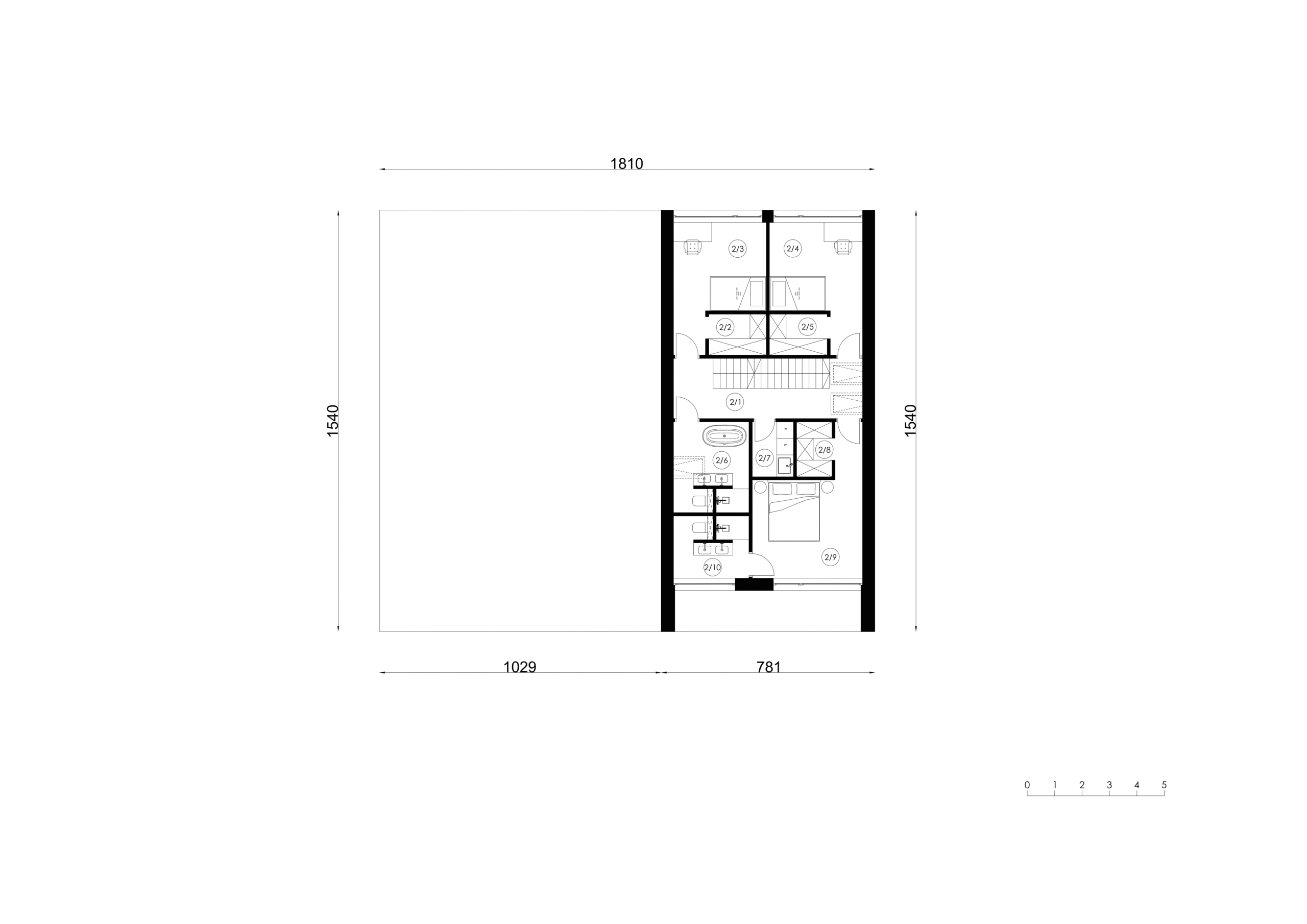
PIĘTRO
2/1 Komunikacja – 10,50 m²
2/2 Garderoba – 3,14 m²
2/3 Pokój – 12,84 m²
2/4 Pokój – 12,84 m²
2/5 Garderoba – 3,14 m²
2/6 Łazienka – 8,87 m²
2/7 Pralnia – 2,79 m²
2/8 Garderoba – 2,76 m²
2/9 Sypialnia – 16,66 m²
2/10 Łazienka – 6,00 m²
