DOM PIĘTROWY N-270


INFORMACJE
autor projektu: Marcin Macieszko
pracownia projektowa: Nanostudio
powierzchnia użytkowa budynku mieszkalnego: 234,76 m²
powierzchnia garażu i pom. technicznnych: 47,82 m²
powierzchnia zabudowy budynku mieszkalnego: 187,09 m²
kubatura budynku mieszkalnego: 1447,78 m³
wysokość budynku mieszkalnego: 9,50 m
kąt nachylenia dachu budynku mieszkalnego: 35°
szacunkowy koszt budowy: 552 tys. (stan surowy zamknięty netto)


TECHNOLOGIA WYKONANIA
fundament: ławy fundamentowe
ściany zewnętrzne: murowane, dwuwarstwowe
ściany wewnętrzne: murowane
strop: konstrukcja drewniana
dach: dachówka ceramiczna

OPIS
Budynek jednorodzinny dwukondygnacyjny pod względem funkcjonalnym odpowiada potrzebom 6-7 osobowej rodziny. We wnętrzu widać wyraźny podział na część dzienną-parter, na którą składa się otwarta przestrzeń salonu z kuchnią oraz jadalnią, a także kuchnia pomocnicza, pokój z łazienką, wc oraz pomieszczenie techniczne. Część nocną- piętro stanowią sypialnia z garderobą i łazienką, 4 pokoje, siłownia, sauna, pralnia, dwie łazienki oraz pomieszczenie pomocnicze. W bryle budynku przewidziano garaż dwustanowiskowy.
Budynek projektowany jest w nowoczesnej stylistyce, elewacje pokryte są cegłą elewacyjną, całość dopełniona jest grafitową, aluminiową solarką okienną. Bryła kryta jest dachem dwuspadowym o kącie nachylenia 35° pokryta dachówką ceramiczną płaską w kolorze grafitowym. Rozwiązania materiałowe nawiązują do najnowszych trendów kształtowania architektury. Pomimo swoich gabarytów zyskuje lekkość dzięki dużym przeszkleniom od strony ogrodu.

PARTER
1/1 Przedsionek – 4,58 m²
1/2 Komunikacja – 8,32 m²
1/3 Salon – 44,48 m²
1/4 Kuchnia – 12,52 m²
1/5 Kuchnia pom. – 5,88 m²
1/6 Łazienka – 5,00 m²
1/7 Pokój – 13,38 m²
1/8 Pom. Techniczne – 5,82 m²
1/9 WC – 3,97 m²
1/10 Garaż – 42,00 m²

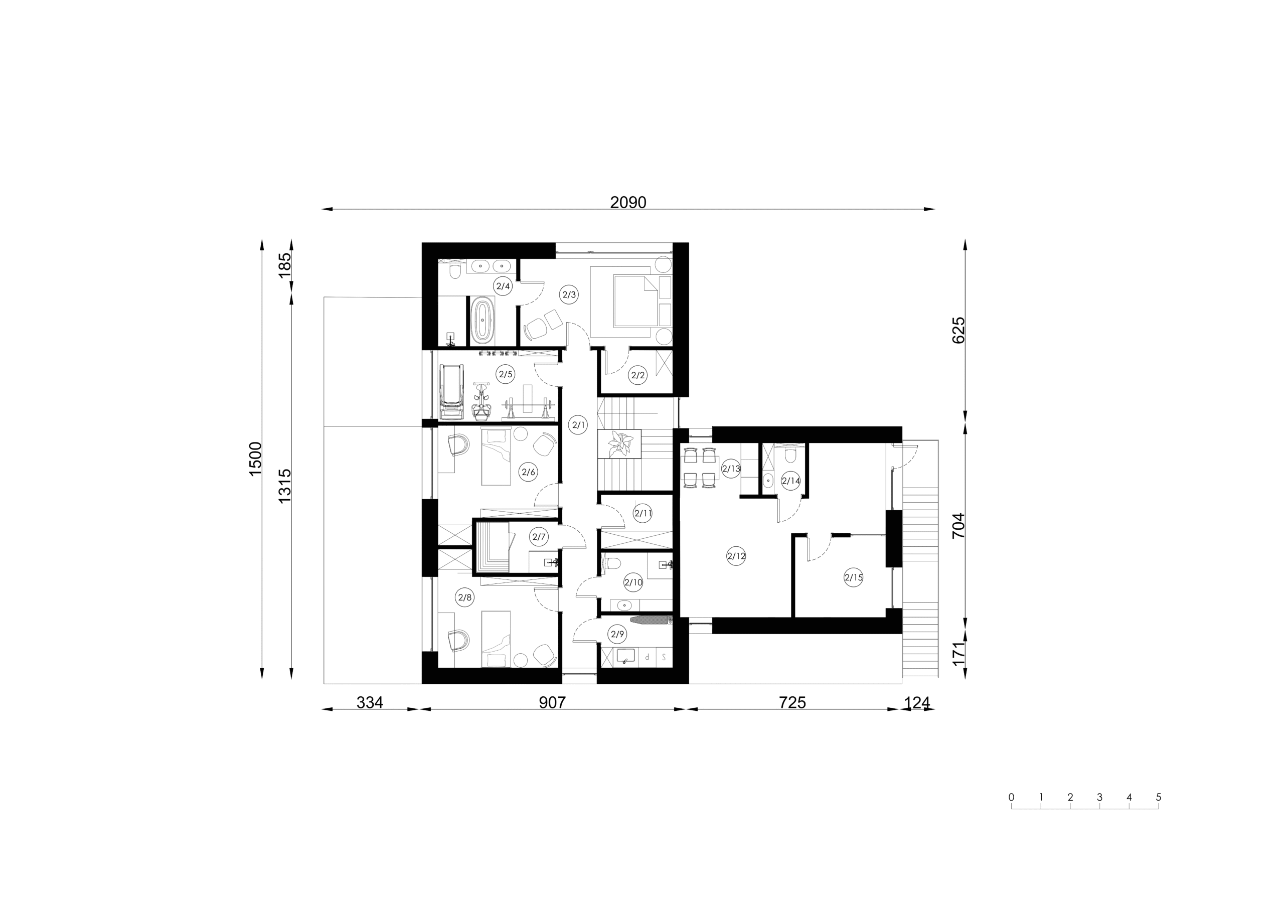
PIĘTRO
2/1 Komunikacja – 13,02 m²
2/2 Garderoba – 3,70 m²
2/3 Sypialnia – 15,78 m²
2/4 Łazienka – 7,78 m²
2/5 Siłownia – 10,01 m²
2/6 Pokój 1 – 14,00 m²
2/7 Sauna – 4,94 m²
2/8 Pokój 2 – 12,82 m²
2/9 Pralnia – 4,54 m²
2/10 Łazienka – 4,98 m²
2/11 Pom. Pomocnicze – 4,87 m²
2/12 Pokój 3 – 24,37 m²
2/13 Kuchnia – 4,75 m²
2/14 WC – 2,64 m²
2/15 Pokój 4 – 8,43 m²
