DOM PIĘTROWY N-271


INFORMACJE
autor projektu: Marcin Macieszko
pracownia projektowa: Nanostudio
powierzchnia użytkowa budynku mieszkalnego: 179,48 m²
powierzchnia garażu i pomieszczeń technicznych: 46,37 m²
powierzchnia zabudowy budynku mieszkalnego: 195,90 m²
kubatura budynku mieszkalnego: 1240,60 m³
wysokość budynku mieszkalnego: 9,67 m
kąt nachylenia dachu budynku mieszkalnego: 30°
szacunkowy koszt budowy: 419 tys. (stan surowy zamknięty netto)


TECHNOLOGIA WYKONANIA
fundament: ławy fundamentowe
ściany zewnętrzne: murowane, dwuwarstwowe
ściany wewnętrzne: murowane
strop: konstrukcja drewniana
dach: blacha dachowa na rąbek

OPIS
Budynek jednorodzinny, dwukondygnacyjny, o nowoczesnej i zwartej bryle, zaprojektowany z myślą o komfortowym użytkowaniu przez 4–5-osobową rodzinę. Czterospadowy dach, pokryty ciemną blachą, kontrastuje z jasnymi powierzchniami elewacyjnymi oraz drewnianą okładziną, nadając budynkowi elegancki, nowoczesny charakter.
Na parterze zlokalizowano strefę dzienną z otwartą kuchnią, jadalnią i salonem, uzupełnioną o spiżarnię, łazienkę, pokój/gabinet, pomieszczenie techniczne oraz garaż dwustanowiskowy. Piętro stanowi strefę nocną, obejmującą dwie sypialnie, łazienkę, pralnię oraz sypialnię główną z garderobą i prywatną łazienką. Duże przeszklenia zapewniają dobre doświetlenie wnętrz oraz kontakt z otoczeniem, a czytelny podział funkcjonalny gwarantuje wygodę użytkowania.

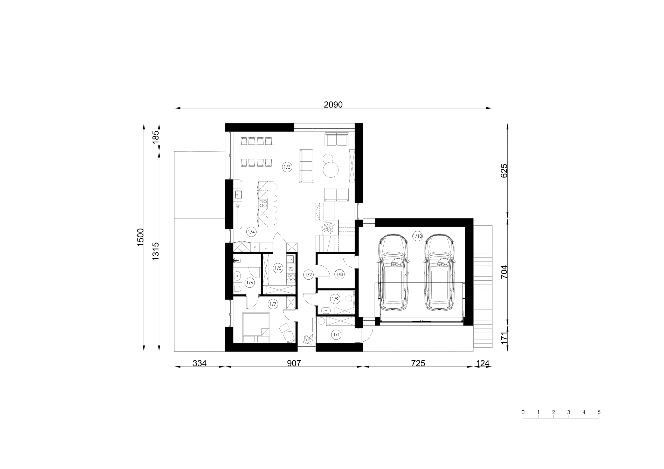
PARTER
1/1 Przedsionek – 9,03 m²
1/2 Pokój – 12,95 m²
1/3 Łazienka – 4,60 m²
1/4 Gabinet / Pokój Gośconny – 12,89 m²
1/5 Komunikacja – 4,29 m²
1/6 Kuchnia – 19,71 m²
1/7 Jadalnia + Salon – 29,66 m²
1/8 Spiżarnia – 4,78 m²
1/9 Pomieszczenie Techniczne – 5,00 m²
1/10 Garaż – 41,37 m²

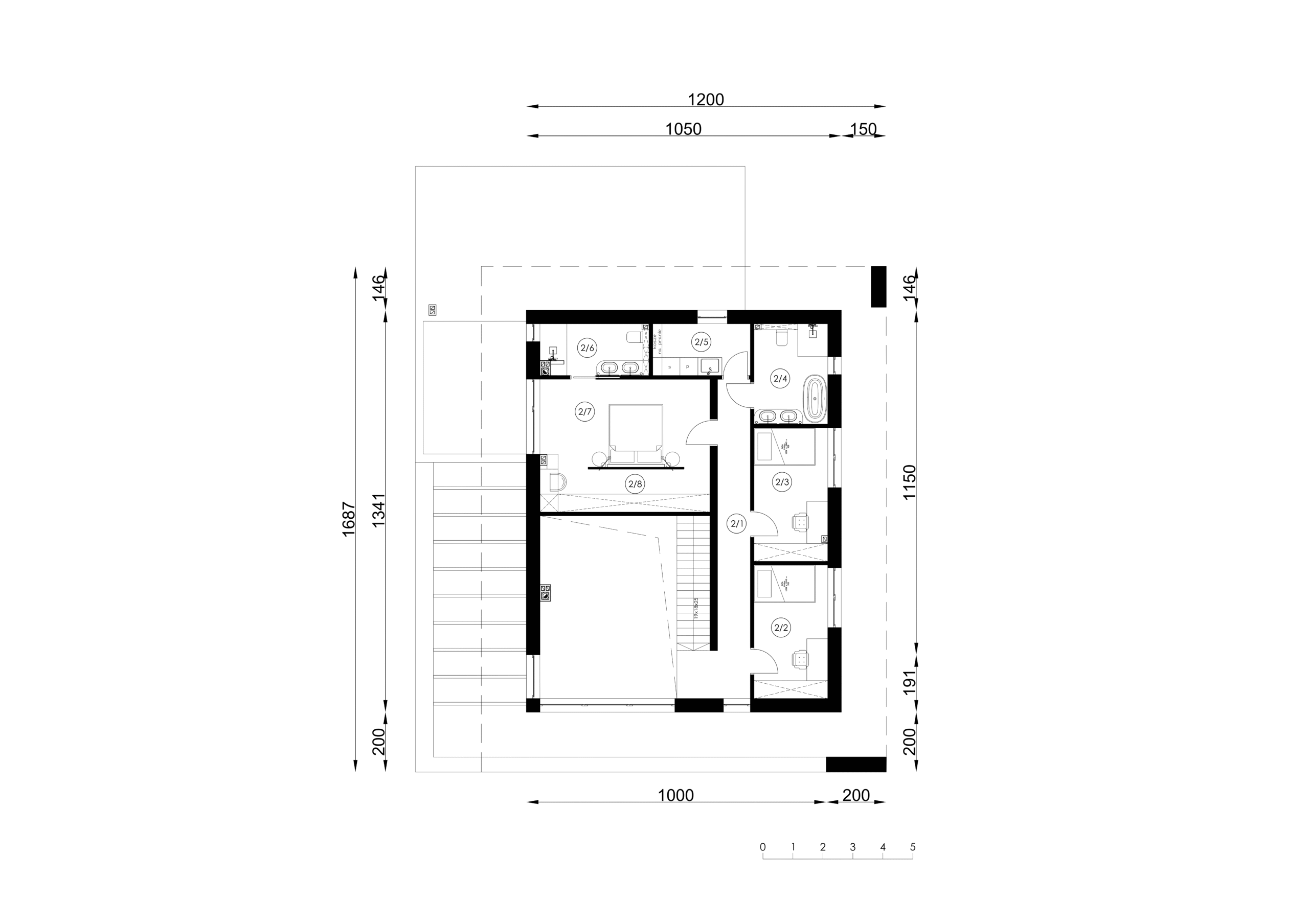
PIĘTRO
2/1 Komunikacja – 13,89 m²
2/2 Pokój – 10,97 m²
2/3 Pokój – 10,97 m²
2/4 Łazienka – 8,25 m²
2/5 Pralnia – 5,65 m²
2/6 Łazienka – 6,31 m²
2/7 Sypialnia – 17,20 m²
2/8 Garderoba – 8,33 m²
