GABINET STOMATOLOGICZNY U-205


INFORMACJE
autor projektu: Marcin Macieszko
pracownia projektowa: Nanostudio
powierzchnia użytkowa budynku usługowego: 183,52 m²
powierzchnia zabudowy budynku usługowego: 222,59 m²
kubatura budynku usługowego: 986,27 m³
wysokość budynku usługowego: 4,35 m
kąt nachylenia dachu budynku usługowego: 5°
szacunkowy koszt budowy: 419 tys.(stan surowy zamknięty netto)


TECHNOLOGIA WYKONANIA
fundament: ławy fundamentowe
ściany zewnętrzne: murowane, dwuwarstwowe
ściany wewnętrzne: murowane
strop: gęstożebrowy
dach: membrana EPDM

OPIS
Budynek parterowy przeznaczony w całości na funkcję usługową- gabinety stomatologiczne. Został on przykryty w całości dachem płaskim. Elewacja budynku została zaprojektowana w nowoczesnej stylistyce co podkreśla jasny tynk zewnętrzny z elementami ciemnego w połączeniu z deskami. W obiekcie zlokalizowano przestronną poczekalnie z toaletą dla pacjentów, pracownie, pomieszczenia socjalne i techniczne, pomieszczenia gospodarcze i gabinety.

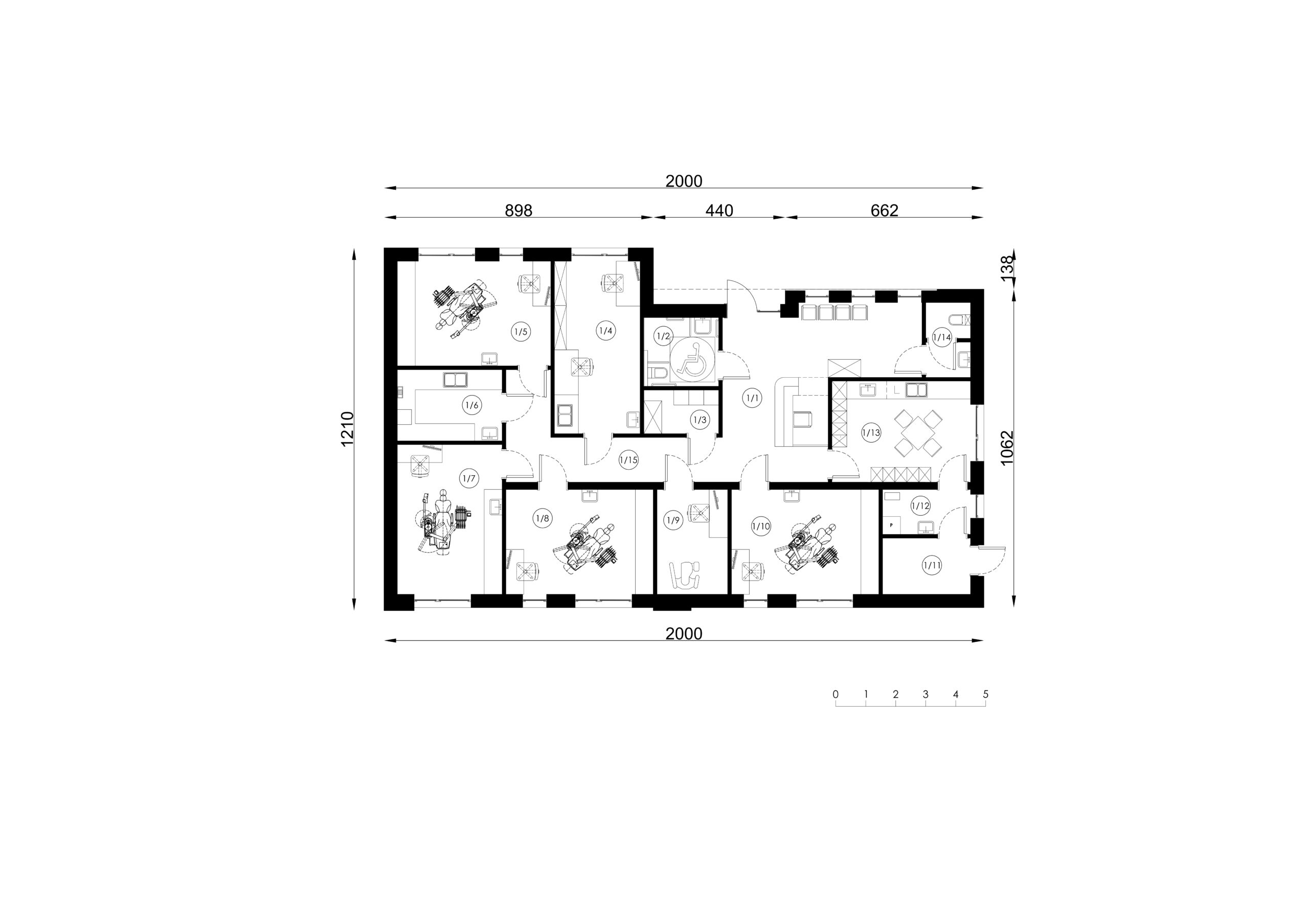
PARTER
1/1 Rejestracja z poczekalnią – 27, 72 m²
1/2 WC pacjentów– 5,72 m²
1/3 Pomieszczenie techniczne– 3,65 m²
1/4 Pracownia techniczna – 16,47 m²
1/5 Gabinet 1 – 17,92 m²
1/6 Sterylizatornia – 8,33 m²
1/7 Gabinet 2 – 17,50 m²
1/8 Gabinet 3 – 17,22 m²
1/9 RTG – 8,26 m²
1/10 Gabinet 4 – 17,22 m²
1/11 Kotłownia – 5,52 m²
1/12 Pomieszczenie gospodarcze – 4,41 m²
1/13 Pomieszczenie socjalne – 15,65 m²
1/14 WC personelu – 3, 68 m²
1/15 Komunikacja – 14,22 m²
